
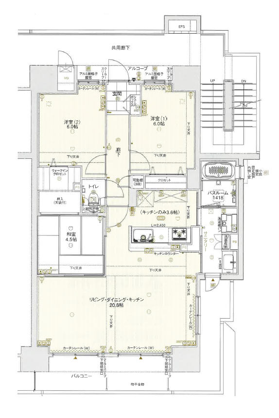
アルファスマート岡山医大南の南東角部屋の間取りをご紹介します。
専有面積約80㎡の広々とした3LDKタイプ。
20.5帖のLDKを仕切り、4LDKに変更する事も可能です。
リビングには南と東からの陽光が差し込み、非常に明るい空間となります。
各洋室は6帖あり、寝室、子供部屋、仕事部屋に適しています。
ウォークインクローゼットも採用されており、収納力も抜群です。
4.5帖の和室はお子さんを遊ばせるスペースだったり、客間だったりと様々な用途がありそうです。
更にこちらのマンションでは、バスルームに窓が付いているのは角部屋のみ。
ペットの飼育も可能、周辺環境にはスーパーや病院が近く、大元駅までもアクセスしやすい立地条件。
「この部屋が販売されたらいくらくらい?」というご相談も承っております。
マンションのご購入・ご売却の際は是非一度ウェーブハウスの清水までご相談ください。
FREE:0120-9696-19
担当:清水(しみず)
◇不動産に関する記事◇
◇鹿田小学校区のマンション情報◇
◇営業マンの日常◇
あなたの不動産、いまどれくらいの価値があるか知っていますか?
『不動産売却王』なら、たった数分で簡単に査定が可能です!
物件情報を入力するだけで、最新の査定額がその場で確認できます。
もちろん利用は完全無料!
査定後もこちらからの営業やしつこい連絡は一切ありませんのでご安心ください。
さあ、あなたの不動産の価値をチェックしてみましょう!
➡ 今すぐ無料査定を試してみる!
『不動産売却王』なら、たった数分で簡単に査定が可能です!
物件情報を入力するだけで、最新の査定額がその場で確認できます。
もちろん利用は完全無料!
査定後もこちらからの営業やしつこい連絡は一切ありませんのでご安心ください。
さあ、あなたの不動産の価値をチェックしてみましょう!
➡ 今すぐ無料査定を試してみる!