鹿田小学校区で人気マンションブランドの一棟、「ロイヤルガーデン大供弐番館」が販売開始です。
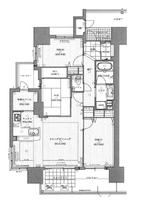
今回のお部屋は上層階の南西角部屋、81㎡、3LDKタイプのお部屋です。
広々としたバルコニーには、ロイヤルガーデンシリーズの特徴でもある、「スカイテラス」がございます。
各洋室は6帖、7帖と使いやすい広さ、和室も6帖あり全体的に開放感のある居室となっています。
玄関にあるシューズクロークも大容量、キッチン裏に収納スペースも用意されており、収納力は抜群です。
現在オーナー様がお住まい中ではございますが、日程調整の後にご見学して頂く事がございます。
ご見学の際はウェーブハウスまでお問い合わせください。
FREE:0120-9696-19
◇不動産に関する記事◇
◇鹿田小学校区のマンション情報◇
◇営業マンの日常◇
PR
今の物件価値、まずは無料で確かめてみませんか?
「売るかどうかはまだ決めていない」という方でも、今の市場でどのくらいの価値がつくのかを知っておくだけで、今後の判断がずっとしやすくなります。
「不動産売却王」は、物件情報を入力するだけで自動査定が受けられる無料サービスです。難しい手続きは不要で、スマホからでもかんたんに使えます。査定を受けたからといって、売却を急ぐ必要はまったくありません。
不動産売却王で無料査定してみる →「不動産売却王」は、物件情報を入力するだけで自動査定が受けられる無料サービスです。難しい手続きは不要で、スマホからでもかんたんに使えます。査定を受けたからといって、売却を急ぐ必要はまったくありません。
※査定は無料です。売却の意思がなくてもご利用いただけます。
